Layanan Kontraktual
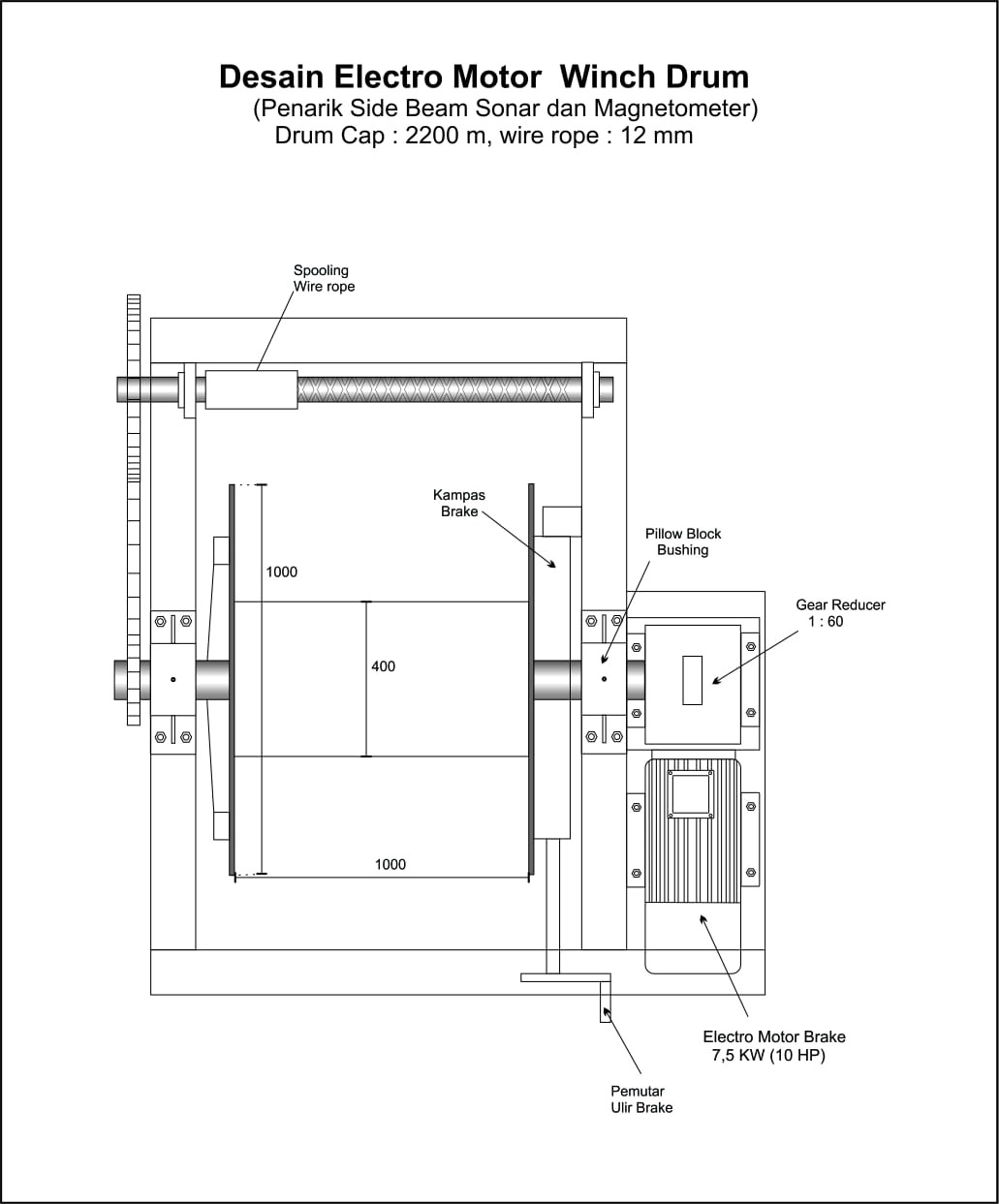
DESKRIPSI LAYANAN | Spesifikasi Detail: Dimensi Winch P x L x T : 350 cm x 260 cm x 240 cm Diameter Wire Rope : 12mm Dimensi Drum Diameter Dalam 400 mm Diameter Samping 1000 mm Lebar Drum 1000 mm Panjang Wire Rope : 1800 m Gear Reducer Ratio : 60 Trans Gear / Oper Gear…
- Laboratorium Alat Survei - Kelautan dan Lingkungan
- Direktorat Pengelolaan Laboratorium, Fasilitas Riset, dan Kawasan Sains dan Teknologi
- KST Serpong (Bacharuddin Jusuf Habibie)
KST BJ Habibie Serpong Gedung 255 Laboratorium Alat Survei - 08119811551
- pengelolaan_alatsurvei@brin.go.id
Marketing Office
Deputi Bidang Infrastruktur Riset dan Inovasi BRIN
layanan_sains@brin.go.id
Spesifikasi Detail:
- Dimensi Winch
- P x L x T : 350 cm x 260 cm x 240 cm
- Diameter Wire Rope : 12mm
- Dimensi Drum
- Diameter Dalam 400 mm
- Diameter Samping 1000 mm
- Lebar Drum 1000 mm
- Panjang Wire Rope : 1800 m
- Gear Reducer Ratio : 60
- Trans Gear / Oper Gear 1.0
- Kecepatan putaran drum : 23,3 rpm
- Kecepatan Tarik Winch
- Kecepatan Minimum : 31,07 m/menit (Layer ke- 1)
- Kecepatan Maksimum : 53,90 m/menit (Layer ke-14)
- Pull Cap
- Pull Cap Minimum : 0.85 Ton (Layer ke-14)
- Pull Cap Maksimum : 1.5 Ton (Layer ke- 1)
- Sumber Power : 3 Phase 380 Volt
- Daya Elektrik Motor 7.5 Kw, 10 Hp

















